项目背景
嵘波科技有限公司是全功能驱动变速箱的引领者、动力系统的改进者和新一代绿色、节能汽车的开发者。
嵘波科技落户南京,推出全功能驱动变速箱,为节能和新能源汽车提供先进的纯电驱动和混合动力传动系统产品。该混合动力专用变速箱(DHT)基于AT自动变速箱技术和多能源动力系统集成技术,是我国汽车产业链的缺失环节。
项目目标
通过SIPM/PLM项目实施,达成以下目标:
l 通过PLM的实施,提升企业的设计以及研发能力,通过系列化、通用化、模块化的设计手段实现精益生产制造。
l 通过集成产品设计的协同,建立以BOM为纽带的物料、模型、图纸、文件等设计数据相关联的产品数据模型,方便用户对数据的上传、下载、查询、引用、修改、比较等方面的操作。
l 通过实现PLM中电子文件和现场纸张文件完全一致,实现对物料、技术文件的统一编码。
l 规范文件标准-----提升与产品相关的图纸、检验标准、产品说明文档、技术文档、编码规则的规范统一管理。
l 充分利用网络的快捷和可追溯性,逐步建立电子通知、报批及审核机制,避免以往人工的出错、遗忘,为实现无纸化办公铺平道路。
l 通过产品知识库的建立,积累企业的知识财产,并确保产品数据的正确性、完整性、规范性及安全性。
l 通过电子签名方式,规范图纸的签审过程。
通过SIPM/PLM建立统一的产品数据管理平台
对产品进行了精细化分类并在PLM系统固化,同时将文件、图档与产品建立统一的有机体。实现产品分类化、标准化的管理目的。
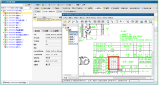
三维软件与PLM系统的集成应用
采用三维设计软件与PLM系统集成技术,设计人员只需在制定好的三维设计软件模板中完成图纸设计,便可通过集成接口将自己设计的图纸上传到PLM系统。保存整套的产品三维设计软件图纸进入SIPM/PLM中时可直接提取生成树状产品BOM,并保证图纸修改后,对应零部件和BOM的信息自动同步更新。

统一编码规则,避免一物多码重复发生
通过SIPMPLM的实施将公司管理的物料编码规则和各类文档编码规则固化到系统中,技术文件在SIPMPLM能自动编码,实现一物一码。

编码管理
数据集成
PLM把产品的物料、BOM信息分别发送的PBOM包,ERP系统读取生成物料、BOM等。根据设计数据进行生产、装配。

PBOM包数据
PDF工厂
实现对三维工程图及WORD、EXCEL文件电子化签名,优化传统签审流程,降低企业成本。

变更可追溯
每一次变更系统都会有变更记录,BOM有BOM差异比较,文件有文件的历史版本,可供查阅与下载。

通过动态管理更加直观的查询数据的实时状态
在SIPM/PLM实施前,图文档的保存都是保存工程师电脑,数据的新增和变更情况无法统计。
通过SIPM/PLM的实施,可以更直观的查询各个部门数据产出的情况,以及数据变更的情况。

动态管理-成果看板
总结:
1、数据管理—建立数据的报批及审核机制,实现产品BOM、图纸、技术文件等产品数据集中规范统一管理,提高产品数据的安全性及查询效率,提升公司产品数据管理水平。
2、数据源统一—统一的编码体系,图纸数据与系统数据的互联互动,杜绝数据不一致带来的管理问题,降低公司管理成本。
3、流程管理一根据不同业务建立签审流程,完善数据的签审过程和图文档的电子签名。
4、变更管理—实现变更管理流程标准化、系统化。保证变更过程节点可控,变更历史可追溯。
5、知识管理—实现技术数据不断沉淀与积累,形成公司核心的数据资产。
6、数据监控—实现数据在系统中创建修改等过程的实时监控。